- 価格
- 5,970万円
- 新築戸建
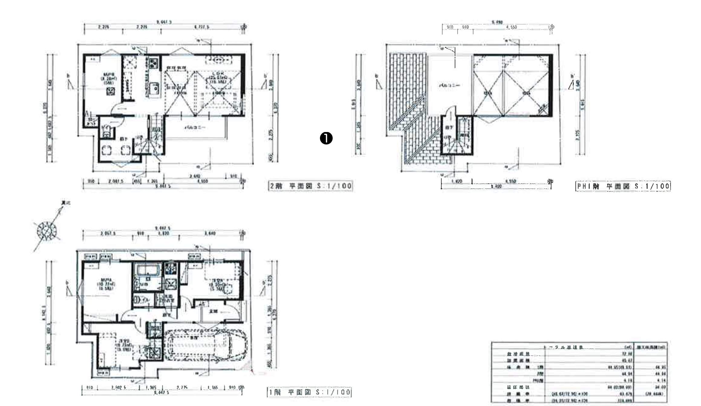
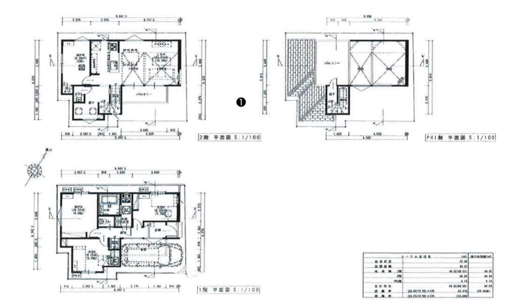
- 間取
- 4LDK
|
|
| 所在地 | 埼玉県川口市原町16-28 新築戸建 仲介手数料無料 5970万円 更にお祝金最大20万円プレゼント付 川口駅歩16分 |
|---|---|
| 交通 | JR京浜東北・根岸線川口駅 徒歩16分 |
| 築年月 | 2026年(令和_8年)_6月 | 新築/中古 | |
|---|---|---|---|
| 面積 | 85.29m² | 計測方式 | |
| バルコニー | 向き | ||
| 建物階数 | 地上2-3階 | 部屋階数 | |
| 建物構造 | 木造 | ||
| 間取内容 |
|
||
| 駐車場 | 取引態様 | 仲介 | |
| 引渡/入居時期 | 2026年(令和_8年)_6月 下旬 | 現況 | 空家 |
| 土地面積 | 87.34m² | 土地面積計測方式 | |
| 土地権利 | 所有権 | 接道状況 | |
| 周辺環境 | |||
| 設備・条件 | |||
| 物件番号 | USK260216005 | ||
川口市原町 新築戸建 仲介手数料無料 5970万円値下げ!更にお祝金最大20万円プレゼント付 川口駅歩16分 新築戸建
川口市の新築戸建のご購入について
新築戸建の仲介手数料が無料!(当社規定による)多くの新築戸建が対象。他社ネット掲載物件はお問い合わせください
間取り表示のSはサービスルームを指し「納戸」という意味の表示になります。
場所が明確にわかる地図付!
メルディア 川口市原町 新築戸建 仲介手数料無料
川口市原町 新築戸建 仲介手数料無料 5970万円値下げ!
1号棟 価格改定5970万円(税込)2026/03/28共通
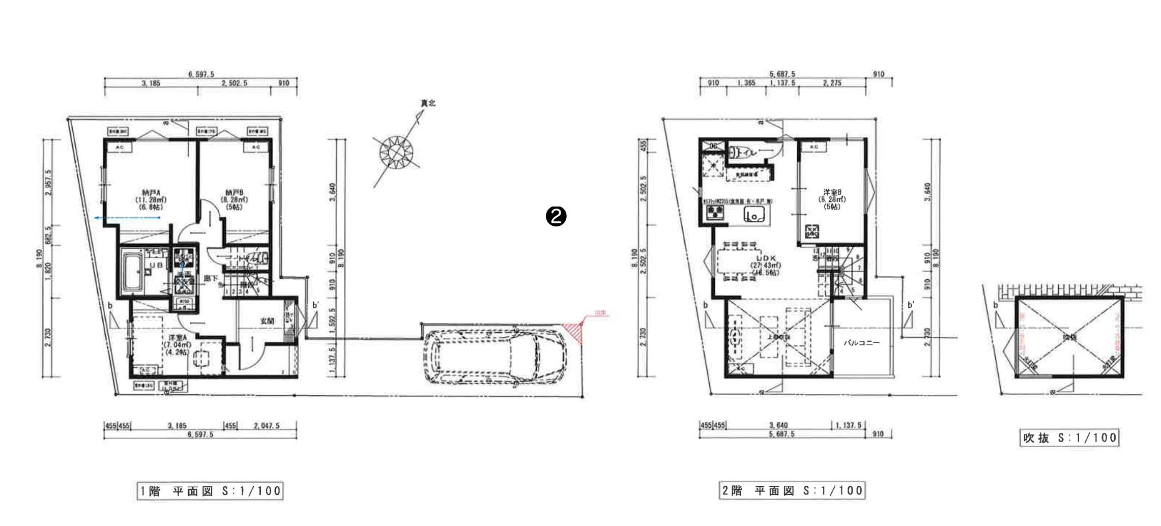
完売御礼>2号棟 価格改定5780万円(税込)
メールではなくLINEご希望の方は下記で登録。
物件の番号やURLをお送りください。
お電話1本でスグご案内致します。
仲介手数料無料の川口市エリアの仲介手数料無料の不動産屋
本物件お近く、他の不動産はこのページ最下段に表示!
スマホは下記番号タッチでお電話。
電話048-789-6219
・⇩新規&値下げ情報は自動配信メール登録へ
◆◆◆◆◆◆◆◆◆◆◆◆◆◆◆◆
こちらの売主物件の仲介手数料は0円無料です。
◆◆◆◆◆◆◆◆◆◆◆◆◆◆◆◆◆
お祝い金プレゼント付は当社利益を還元!
川口市の不動産の詳細資料はお問い合わせください。
サイト未掲載の物件も仲介手数料無料でご紹介出来るかお調べします。
自己資金0円の方。住宅の購入の資金が無い方も当社なら諸費用が安くなるチャンスです。お気軽ご相談くださいませ。
【川口市の仲介手数料無料0円表記について】――――――――――――――――――――――――
<<仲介手数料無料の計算式>> 詳しく⇒コチラ
正規仲介手数料 = ≪物件価格(消費税抜)× 3% + 60,000円 ≫ + 消費税
物件価格 正規仲介手数料
7,000万円=約237万円⇨仲介手数料無料0円+お祝金付き
6,000万円=約205万円⇨仲介手数料無料0円+お祝金付き
5,000万円=約171万円⇨仲介手数料無料0円+お祝金付き
4,000万円=約138万円⇨仲介手数料無料0円+お祝金付き
3,000万円=約105万円⇨仲介手数料無料0円+お祝金付き
2,000万円=約 72万円⇨仲介手数料無料0円+お祝金付き
もちろん本体の値引き交渉で更にお得に!
一般的な川口市エリアの仲介業者の場合には上記の【正規仲介手数料】が掛かります。
もちろん本体の値引き交渉もいたします!
1.別途費用(住宅ローンの審査等無料)当社は一切頂きません。
2.現地にてオープンハウスは行っておりません。
3.単純に少ない仲介手数料で低コスト運営(広告、写真、人員等削減)。
4. 国家資格を有する「宅地建物取引士」がご案内
5.他諸経費:登記費用、火災保険、ローン保証料、引越し代
諸費用内訳詳細はコチラ
イデア不動産を仲介手数料無料(川口市他)で利用すると良いワケ!
A:「売主物件」は全て仲介手数料無料0円!※1
B:「売主物件」は当社よりお祝金お祝い金プレゼント付
C: 各売主によるこだわりや違い、特徴を見学勉強会ツアーでご説明。
D: 川口市エリア付近の売主が異なる複数物件を比較して値引交渉出来ます。
E: 売主直売より当社が他物件と比較価格交渉するためお安くなります。
F:「共同仲介物件」でも仲介手数料50%OFF。※2でご案内可能。
G: 学びながら買うがモットー。宅地建物取引士(国家資格者)がご案内します。(他社の仲介営業マンは資格者2割程度。)
H: 知るべきデメリットとメリットをプロ目線で明確に厳しく伝えます。法令的、建築的、環境、ハザード要因等資料あり。
登録日2026.02.16.取引条件有効期限2026.8.30(完売の際はご了承ください)
更新日は別欄に記載 2週以内更新はUPマーク付 (次回更新2週間以内予定)
内見の際はご連絡くださいませ。また、売約済の場合はあしからずご了承くださいませ。
売主物件仲介とは、直接売主から買主にご紹介ご契約して頂く仲介
※2共同仲介物件とは、売主に売却専門(専任)の不動産仲介業者A社がついて
当社がお客様をご紹介して、不動産仲介業者A社と交渉を行う、2つの仲介業者が共同で売買を行うこと。
主に個人売買の中古マンションや中古戸建ての8割です。






















間取り表示のSはサービスルームを指し「納戸」という意味の表示になります。
グーグルマップの人型のアイコンを移動すると現地写真周辺がご覧になれます。
↓↓ご内覧予約はローン例の下に↓↓
更新2026年:川口市 5/11更新 南区5/12 浦和区5/12 桜区5/12 更新 中央区5/12 更新 大宮区5/12 更新 緑区5/12 更新 見沼区5/7更新 西区5/7更新 北区5/7更新 岩槻区5/7 蕨市5/7更新 戸田市5/7更新 中古MS 5/8 更新(各更新のUPマーク付。原則毎週更新、更新2週間以内予定)夏季年末年始と休業日の更新は除く