㈱イデア不動産|仲介手数料無料の新築や中古不動産売買「埼玉県さいたま市と川口市の仲介手数料無料の不動産屋+キャッシュバック20万円」(埼玉県さいたま市・浦和&大宮駅エリア・川口市、戸田市、蕨市、近郊)|JR埼京線 中浦和駅歩3分 武蔵浦和駅15分|仲介手数料無料
仲介手数料無料,浦和駅,武蔵浦和駅,北浦和駅,南浦和駅,中浦和駅,西浦和,東浦和駅,さいたま新都心駅,大宮駅,川口駅,岩槻駅,(埼玉県さいたま市浦和区,南区,桜区,中央区,緑区,西区,大宮区,見沼区,北区,岩槻区)川口市,戸田市,蕨市,近隣の不動産は新築戸建て、中古戸建て、マンション売買仲介において、仲介手数料無料〜半額に致します。埼玉県で暮らし仕事して40年超。愛する地元で親切丁寧!
メニュー
コンテンツへ移動
ホーム
★<売買物件の条件検索>★
★ワンボタン検索
★<町名選択で検索>★
★グーグルマップ上で探す!★
お客様の声「評価レビュー」★
★自動物件メール配信で家探し★
物件の探し方
仲介手数料無料&お祝金最大20万円&全物件 Googleマップ掲載!
「仲介手数料0円〜の仕組み」
「住宅ローン減税(控除)が月々の支払いを大幅軽減!」年間30万円以上も還付?!
超詳しい。資金計画と住宅ローン
0円仲介の物件照会フォーム
諸費用を安く!
お問合わせ&ご予約(仲介手数料無料0円照会、売却査定、ローン等)
イデア不動産について。
会社概要
売却&買取り査定(仲介手数料無料0プラン)
さいたま市桜区のマンション査定相場一覧表<売却目目安参考>
学校別:さいたま市学区域一覧 小学校中学校
町名別:さいたま市立小中学校通学区域
売買 > 埼玉県さいたま市北区 -町名( 吉野町 )
価格
面積
間取
住所
築年月
1件
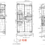
さいたま市北区吉野町1丁目 新築戸建 仲介手数料無料 4299万円 更にお祝金最大20万円プレゼント付 今羽駅歩15分 新築戸建
さいたま市北区吉野町1丁目 新築戸建 仲介手数料無料 4299万円 更にお祝金最大20万円プレゼント付 今羽駅歩15分 新築戸建
4,299万円
3LDK 95.64m²
物件の詳細を見る
価格
4,299万円
新築戸建
間取
3LDK
所在地
埼玉県さいたま市北区 吉野町1丁目387-21 新築戸建 仲介手数料無料 4299万円 更にお祝金最大20万円プレゼント付 今羽駅歩15分
交通
埼玉新都市交通 徒歩15分
築年月
築年不詳
構造
木造
階建
地上 2階
部屋階数
面積
95.64m² 土地 100.79m²
駐車場
区画番号
現況
空家
物件番号
USIW251113005
設備・条件
価格
面積
間取
住所
築年月
1件
前のページにもどる
条件の組合せ[検索]
市区町名[検索]
GoogleMap[検索]
自動メール[配信]で探す
【 複数条件検索 】
【 市区町名検索 】
GoogleMap検索
自動メール配信で探す
Fudousan Plugin Ver.1.9.10