売買 > 埼玉県川口市 -町名( 鳩ヶ谷緑町 )
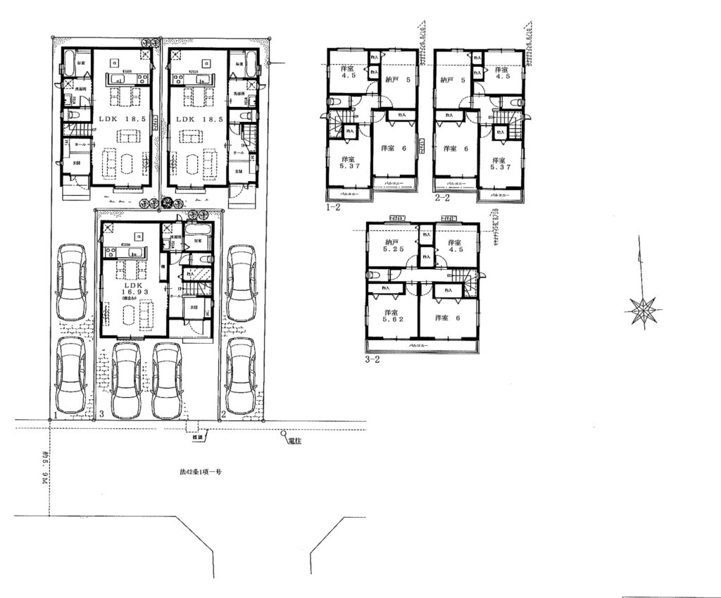
川口市鳩ヶ谷緑町2丁目 新築戸建 仲介手数料無料 3790万円より 更にお祝金最大20万円プレゼント付 南鳩ヶ谷駅歩11分 新築戸建
- 価格
- 3,790万円
- 新築戸建
- 間取
- 3LDK
|
|
- 所在地
- 埼玉県川口市 鳩ヶ谷緑町2丁目11-8 新築戸建 仲介手数料無料 3790万円 更にお祝金最大20万円プレゼント付 南鳩ヶ谷駅歩11分
- 交通
- 埼玉高速鉄道南鳩ヶ谷駅 徒歩11分
|
|
|
| 築年月 | 2025年(令和_7年)_9月 | 構造 | 木造 |
| 階建 | 地上 2階 | 部屋階数 | |
| 面積 | 86.63m² 土地 104.33m² | 駐車場 | |
| 区画番号 | 現況 | 空家 | |
| 物件番号 | USK250623012 | ||
| 設備・条件 | |||
価格
面積



